SOUS OFFRE - LA MANCHE, Sacey, maison de maître, 3 chambres, jardin, dépendances, village
Dominant fièrement la campagne environnante tout en étant au coeur du village (avec un bar !), cette magnifique propriété historique se situe dans la baie du Mont-Saint-Michel. Une dépendance offre un potentiel exceptionnel, pouvant être transformé en gîte ou atelier. Jardin, serre, véranda, puits, sous-sol, trois niveaux et combles partiellement aménagés : la maison offre un espace immense baigné de lumière grâce à ses hautes fenêtres à double vitrage.
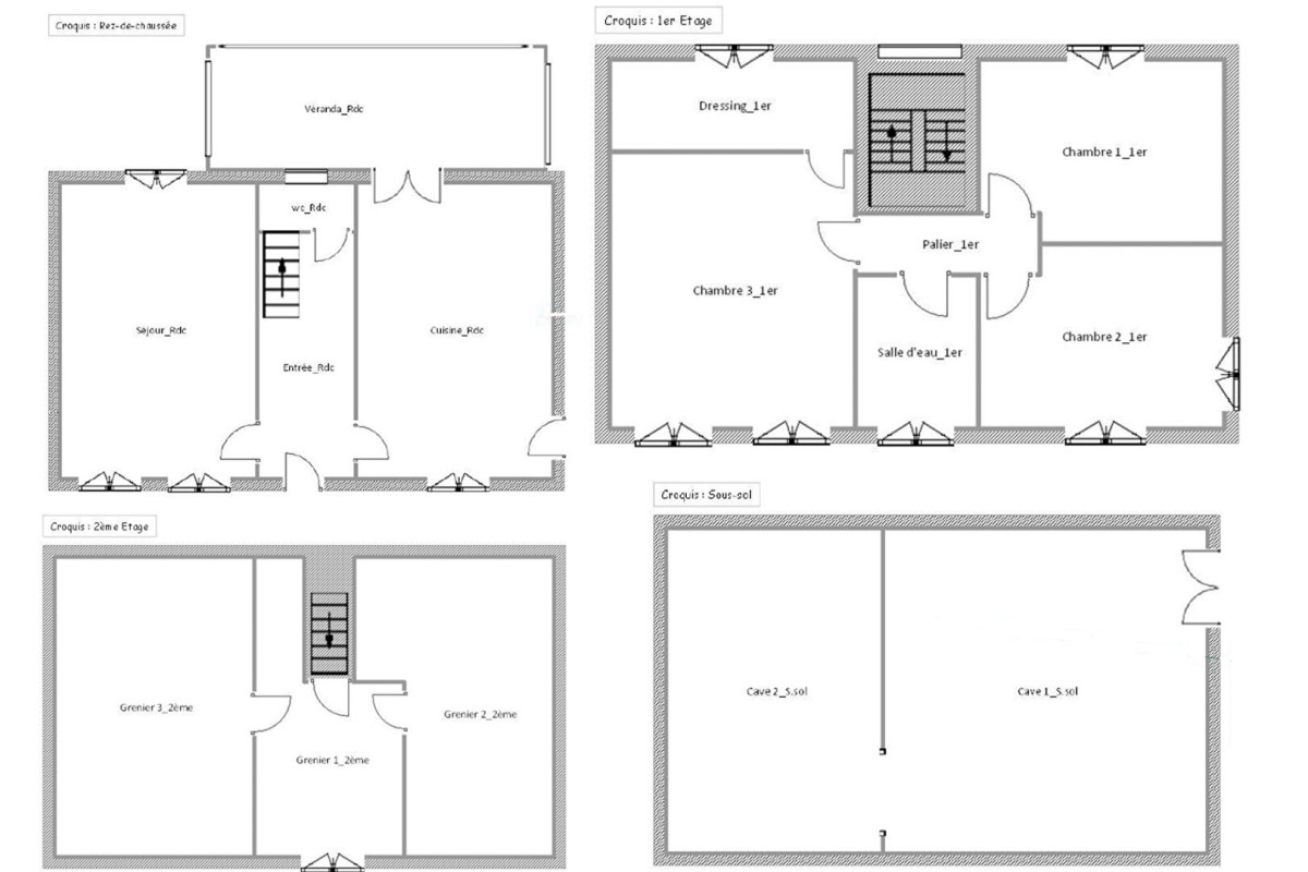
Au rez-de-chaussée, le hall d'entrée dessert un vestiaire avec WC. A droite, la cuisine/salle à manger, avec son poêle à bois dans une cheminée en granit, donne sur une véranda. A gauche, le salon/salle à manger. L'escalier central en fer forgé dessert les trois niveaux. Le premier étage comprend trois chambres et une salle d'eau. Le deuxième étage est à aménager selon vos envies. Chauffage central au fioul avec radiateurs.
Il vous faudra un pinceau et de l'isolation. C'est une maison solide et spacieuse qui trouvera rapidement preneur, alors ne tardez pas !
N'oubliez pas le second bâtiment qui, avec les autorisations nécessaires, pourrait être transformé en une autre maison, plus petite.
Rez-de-chaussée - pièce 1 : 16 m²
Rez-de-chaussée - pièce 2 : 25 m²
1er étage - pièce 3 : 41 m²
Une vidéo complète de cette propriété est disponible. Veuillez envoyer un courriel à alison.s@agencenewton.com pour obtenir un lien direct.
Contactez-moi : alison.s@agencenewton.com
199 000 euros frais d'agence inclus. DPE F
Taxe Fonciere 2025 : 654 euros Taxe d'Habitation 2025 : 468 euros
Tout-à-l'égout
(5.29 % honoraires TTC à la charge de l'acquéreur.)
Alison SHORE (EI) Agent Commercial - Numéro RSAC : 502 977 705 - ST MALO.
(énergie primaire) émissions








