MANCHE, près de Pontorson, maison en pierres 7 pièces, 4 chambres, piscine couverte, jardin, garages
Une Maison Familiale de Charme en Normandie, Près de Pontorson. Dans la Baie du Mont Saint Michel.
S'il vous plait voir la video.
Présentation
Cette impressionnante maison familiale est indépendante et située dans la pittoresque Baie du Mont-Saint-Michel, alliant harmonieusement charme traditionnel et confort moderne.
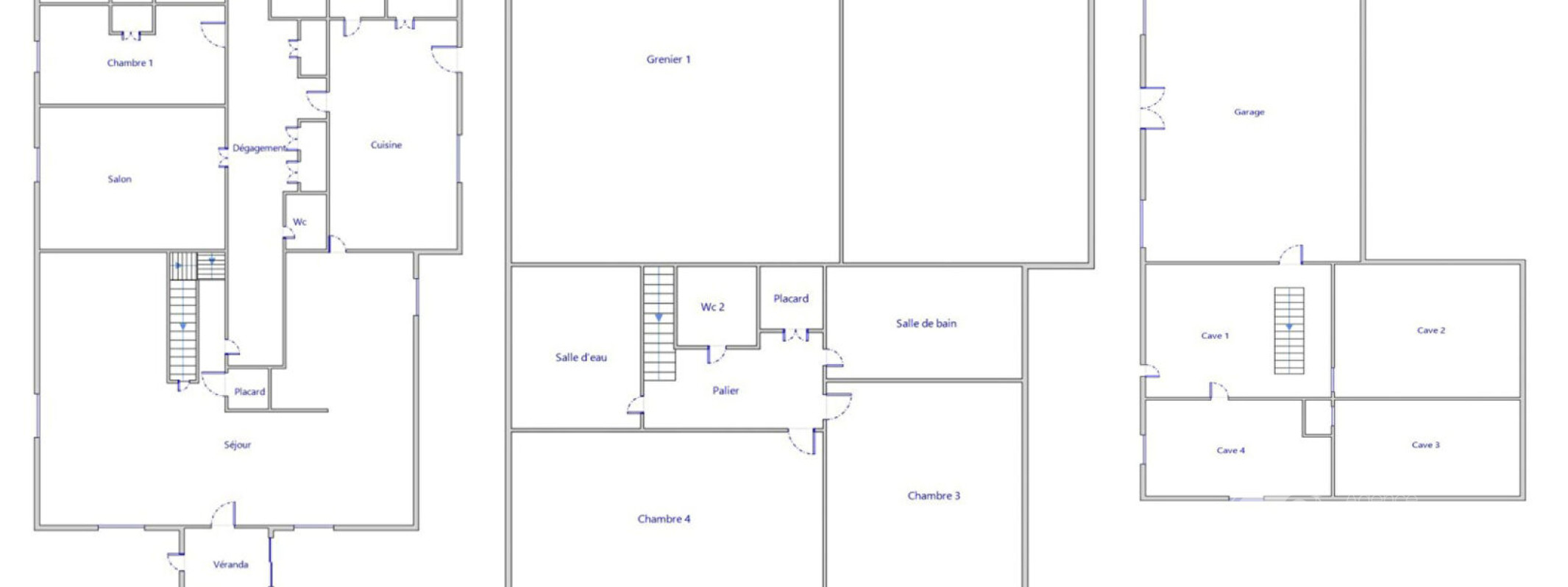
D'une surface habitable généreuse de 176 m², la propriété comprend sept pièces principales, dont quatre chambres.
Caractéristiques principales
-Piscine couverte
-Magnifique jardin d'environ 1 900 m², agrémenté d'arbres remarquables
-Deux garages offrant un grand parking et un espace de rangement
-Puits avec pompe
- Allée avec portail électrique
- Classe énergétique : DPE C
- Frais d'agence inclus dans le prix de 350 000 euros
Hébergement
Rez-de-chaussée
En entrant par le porche couvert, vous découvrirez un spacieux séjour-salle à manger, qui mène au couloir central.
A côté, une cuisine bien équipée et un autre salon créent un espace polyvalent et convivial pour la vie de famille.
Le rez-de-chaussée abrite également deux chambres, une salle de bains, des WC, des rangements pratiques et un accès direct à l'un des garages.
Premier étage
A l'étage, la propriété offre deux chambres supplémentaires, complétées par une salle de bains et des WC séparés.
Un grenier, situé au-dessus et sur un côté.
Potentiel supplémentaire
L'ensemble de la propriété repose sur un sous-sol, actuellement utilisé comme garage et débarras. Cet espace généreux offre d'intéressantes possibilités d'aménagement en logement supplémentaire, ou pour une utilisation en gîte ou chambre d'hôtes, sous réserve des autorisations nécessaires.
Emplacement
Idéalement située dans la Baie du Mont-Saint-Michel, à proximité de Pontorson (à seulement huit minutes en voiture), du Mont-Saint-Michel et de la côte (à vingt minutes), et à seulement dix minutes de l'autoroute A84, offrant ainsi d'excellentes liaisons de transport.
Notes historiques
C'est une belle et solide propriété au riche passé historique, comme l'illustre la photo de famille des années 1900 jointe.
Contactez-moi : alison.s@agencenewton.com pour visiter
@alisonagencenewton
Si vous avez un bien à vendre, n'hésitez pas à me contacter. Je vends à une clientèle étrangère et française. (5.11 % honoraires TTC à la charge de l'acquéreur.)
Alison SHORE (EI) Agent Commercial - Numéro RSAC : 502 977 705 - ST MALO.
(énergie primaire) émissions








