VENDU - ILLE ET VILAINE, Saint-Georges-de-Reintembault, Maison de campagne en pierre 2 chambres, jardin, garage, parkingMaison Saint Georges De Reintembault
Vendu
sous réserves
sous réserves
ILLE ET VILAINE, Saint-Georges-de-Reintembault, Maison de campagne en pierre 2 chambres, jardin, garage, parking.
Nichée au coeur d'un hameau paisible, cette charmante maison en pierre est entourée de verdure et caressée par le chant des oiseaux. Sans vis-a-vis.
A seulement dix minutes de la pittoresque ville de marché de Saint-James, elle invite à une vie douce et sereine, loin de l'agitation du quotidien.
Dès l'entrée par le portail le jardin dévoile une pelouse, bordée de haies et d'une clôture discrète, offrant un havre de tranquillité.
En franchissant le seuil, la magie opère : l'intérieur a été rénové avec amour, mariant le confort moderne à l'authenticité des poutres apparentes et des pierres dorées.
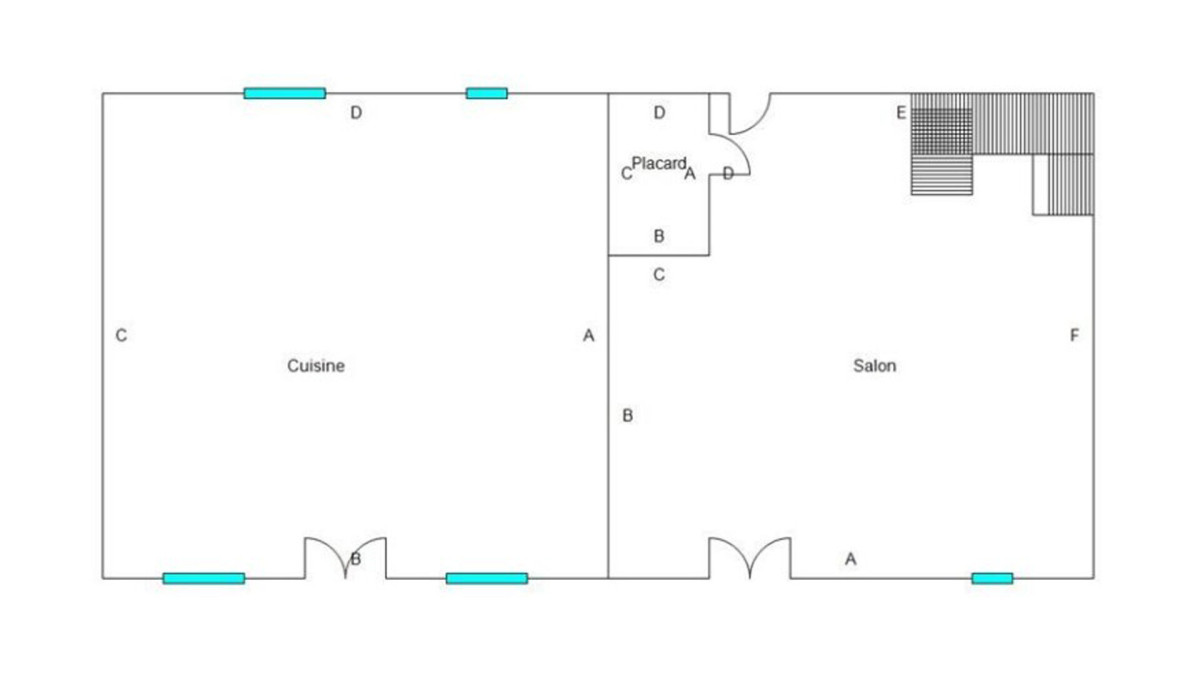
La cuisine spacieuse promet de chaleureux moments partagés, tandis que le salon, baigné de lumière, séduit par son poêle à bois et son atmosphère enveloppante, parfaite pour des soirées douillettes.
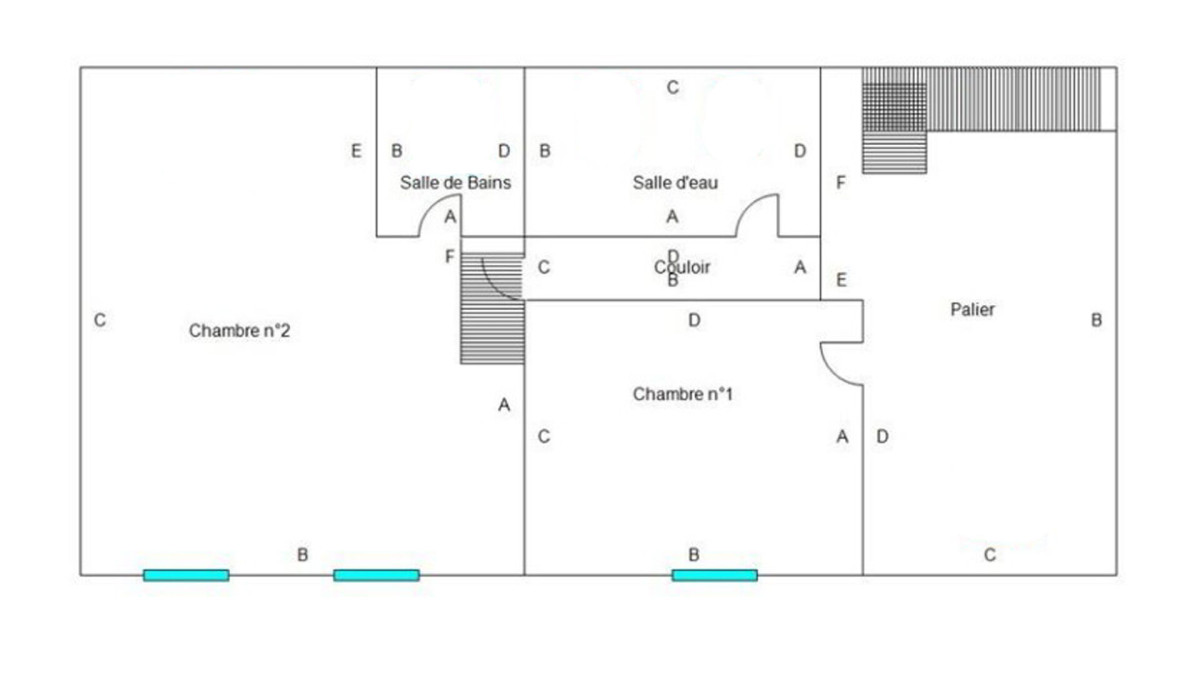
A l'étage, une vaste chambre principale offre un refuge intime avec sa salle de bain privative, tandis qu'une seconde chambre, délicatement aménagée, accueille familles ou amis. Une salle d'eau supplémentaire complète cet espace pensé pour le bien-être.
Cette maison est bien plus qu'une simple demeure : elle incarne le coup de coeur, un havre de paix à découvrir sans tarder, où chaque pierre semble raconter une histoire d'amour et de bonheur.
- Grande et lumineuse cuisine familiale et salle à manger
- Magnifique séjour de caractère avec poêle à bois
- 2 chambres (dont une en suite)
- 2 salles de bains avec WC dans chacune
- Double vitrage dans toutes les pièces, sauf une porte d'entrée
- Radiateurs électriques dans toutes les pièces
- Jardin principalement à l'avant, cour-jardin à l'arrière
- Surface habitable de 125 m²
- Implantée sur un terrain de 606 m²
- La maison est mitoyenne à son voisin en retrait, à droite/arrière, sur environ 3 m
- Nécessite une nouvelle fosse septique
- 127 000 euros FAI
@alisonagencenewton
alison.s@agencenewton.com
(5.83 % honoraires TTC à la charge de l'acquéreur.)
Alison SHORE (EI) Agent Commercial - Numéro RSAC : 502 977 705 - ST MALO.
General
Commune
SAINT GEORGES DE REINTEMBAULT
Code postal
35420
Département
Ille-et-Vilaine (35)
Type de bien
maison
Surface habitable
125 m²
Surface terrain
606 m²
Intérieur
Nombre pièces
4
Plain-pied
Non
Nombre étages
-1
Chambres
2
Salle(s) de bains
1
Salle(s) d'eau
1
WC
2
Type Chauffage
Bois + Electrique
Cheminée
Poêle à bois
Extérieur
Neuf - Ancien
Récent
Aspects financiers
Prix hors honoraires
120000 EUR
Prix honoraires inclus
127000.00 EUR
Honoraires (en %)
5.83 %
Autres
Diagnostics
Soumis à l'affichage du DPE
Oui
Consommation énergie primaire
G
Valeur consommation énergie primaire
424 kWh/m2 par an
Gaz Effet de Serre
C
Valeur Gaz Effet de serre
13 Kg CO2/m2/an
Estimation des Couts Energie Min
3604 EUR
Estimation des Couts Energie Max
4876 EUR
Classes DPE/GES
consommation
(énergie primaire) émissions
(énergie primaire) émissions
424
kWh/m²/an
13
kg CO2/m²/an
Logement très performant
Peu d'émissions de CO2








