MAYENNE, La Dorée, 4-6 chambres, 227 m² habitables, dépendances, garage, jardin, puits, sur un terrain de 3897 m².
248 000 €**
Dont 5.98% TTC honoraires inclus à la charge de l'acquéreur
Vaste maison familiale de village, en bordure de campagne, avec plusieurs dépendances et un pré.
Cette grande maison familiale offre des espaces de vie intérieurs magnifiques et bien conçus. Un investissement important a permis d'assurer un confort optimal et une consommation d'énergie réduite.
A découvrir absolument !
L'ensemble comprend une magnifique et grande grange en pierre (actuellement utilisée comme vaste atelier) qui, avec les autorisations nécessaires, pourrait être aménagée. Le tout s'étend sur près de 4000 m², soit presque un acre. Le pré d'environ 1300 m² est actuellement enherbé et bordé par un autre bâtiment, utilisé comme très grand bûcher mais pouvant également accueillir des animaux. On trouve également un garage intégré, un garage séparé, une serre et un potager. A proximité de la maison principale se trouve un puits en état de marche.
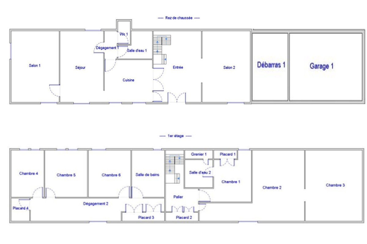
- Hall d'entrée principal avec poêle à bois et salon attenant
- Cuisine familiale équipée avec îlot central
- WC séparés, buanderie avec douche, accès aux pièces de rangement et au jardin
- Salle à manger spacieuse
- Deuxième salon avec poêle à bois
- Escalier menant à l'étage depuis le hall d'entrée :
- 4 chambres spacieuses (dont une avec salle d'eau privative et WC)
- Salle de bains familiale avec baignoire, douche, WC et lavabo
- 2 pièces supplémentaires, dont une actuellement utilisée comme débarras et l'autre comme atelier
- Double vitrage, radiateurs, chauffage central par pompe à chaleur air-eau. Classe énergétique C
- Tout-à-l'égout (fosse septique non requise)
Contactez-moi directement : alison.s@agencenewton.com pour plus d'informations ou pour organiser une visite. Vidéo à venir. (5.98 % honoraires TTC à la charge de l'acquéreur.)
Alison SHORE (EI) Agent Commercial - Numéro RSAC : 502 977 705 - ST MALO.
General
Commune
LA DOREE
Code postal
53190
Département
Mayenne (53)
Type de bien
maison
Surface habitable
227 m²
Surface terrain
3897 m²
Intérieur
Nombre pièces
10
Plain-pied
Non
Nombre étages
1
Chambres
5
Extérieur
Aspects financiers
Prix hors honoraires
234000 EUR
Prix honoraires inclus
248000.00 EUR
Honoraires (en %)
5.98 %
Autres
Diagnostics
Soumis à l'affichage du DPE
Oui
Consommation énergie primaire
C
Valeur consommation énergie primaire
173 kWh/m2 par an
Gaz Effet de Serre
A
Valeur Gaz Effet de serre
6 Kg CO2/m2/an
Estimation des Couts Energie Min
3340 EUR
Estimation des Couts Energie Max
4520 EUR
Classes DPE/GES
consommation
(énergie primaire) émissions
(énergie primaire) émissions
173
kWh/m²/an
6
kg CO2/m²/an
Logement très performant
Peu d'émissions de CO2








